• Home
  • Work
  • About
  • Contact
Lars Goossens Architect
  • Home
  • Work
  • About
  • Contact

Joolz Headquarters

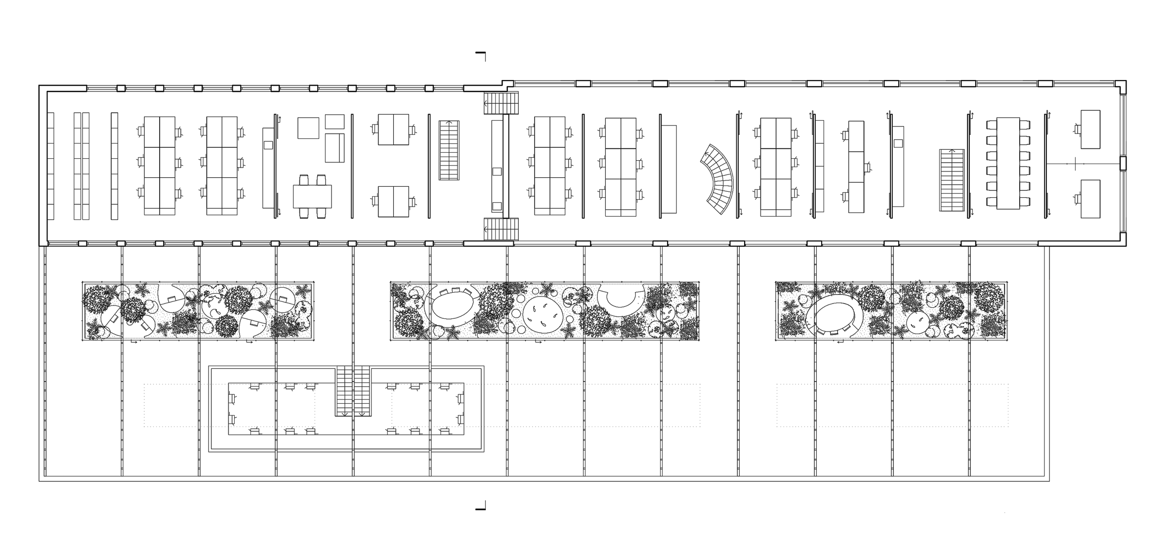
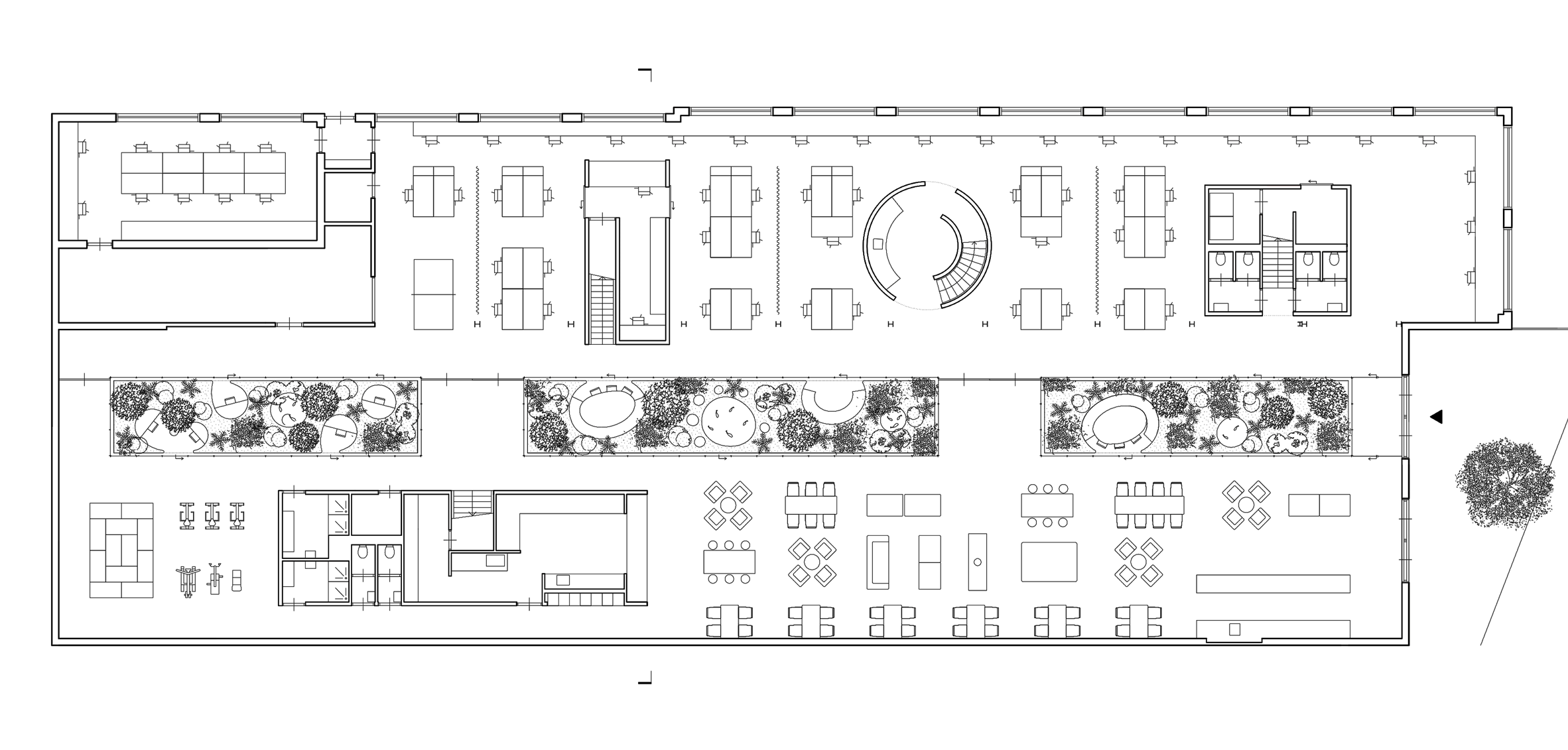
In this Space Encounters project for the new headquarters of Joolz my role was that of the Project Architect. Joolz is a fast-growing Dutch company that designs and manufactures push chairs. Their headquarters is situated in an old factory building in the north of Amsterdam. Three volumes make up the existing building. The ground floor is stripped from its interior walls providing one big open space. Three big internal gardens with exotic plants make a division between a working area and a more informal space for meeting and lunch. The gardens serve as lungs providing fresh and filtered air. Rainwater from the roof is used as nutrition for the plants. Also in between the plants meeting and lounge places are situated. The upper floor is connected to the ground floor through openings overlooking the main hall. 

Location Amsterdam, Netherlands

Client Space Encounters/Joolz

Contractor Barten Groep

space-encounters-joolz1.jpg
space-encounters-joolz6.jpg
space-encounters-joolz7.jpg
space-encounters-joolz3.jpg
space-encounters-joolz5.jpg
space-encounters-joolz11.jpg
space-encounters-joolz8.gif
space-encounters-joolz9.gif
space-encounters-joolz10.gif
space-encounters-joolz12.jpg
space-encounters-joolz13.jpg